Bureaux vendu

Prix sur demande
Place Emile Dupont 5 - 4000 Liège
Découvrez ce bien en 360° !

Informations principales

  • 563 m²

Description

Description :
Superbement rénovée, cette demeure prestigieuse est située dans un des endroits les plus prisés du centre-ville de Liège, place Émile Dupont (Avroy). Elle bénéficie d'un emplacement sans vis-à-vis direct. Alliant parquets massifs, cheminées élégantes, boiseries et moulures d’époque, elle combine charme authentique et modernité. Actuellement demeure privée, elle ouvre la voie à de multiples possibilités d'exploitation (habitat privé, professionnel, mixte, co-living, rapport, etc.).

Situation géographique :
Idéalement située au cœur de Liège, la maison se trouve à proximité de toutes les commodités : commerces, restaurants, transports en commun et espaces verts. Ce quartier dynamique attire tant les familles que les professionnels, offrant un cadre de vie agréable avec une riche histoire et une ambiance vivante.

Bon à savoir :
Il est possible d’acquérir plusieurs box-garages accessibles par la terrasse arrière de la maison ! Les volumes de cette propriété sont très confortables : une surface utile de +/- 563 m².

Composition :

  • Rez-de-chaussée (+/- 139 m²) : sas + hall d’entrée, salon, salle à manger, grande cuisine ouverte, terrasse arrière (+/- 50 m²) et accès aux garages, WC séparé.
  • Entresol 0/1 (+/- 19,76 m²) : un sas avec WC séparé et un bureau.
  • 1er étage (+/- 100 m²) : palier, bureau individuel (+/- 10,49 m²) et deux grandes pièces de +/- 34 m² chacune.
  • Entresol 1/2 : salle de douche avec WC supplémentaire (+/- 17,63 m²).
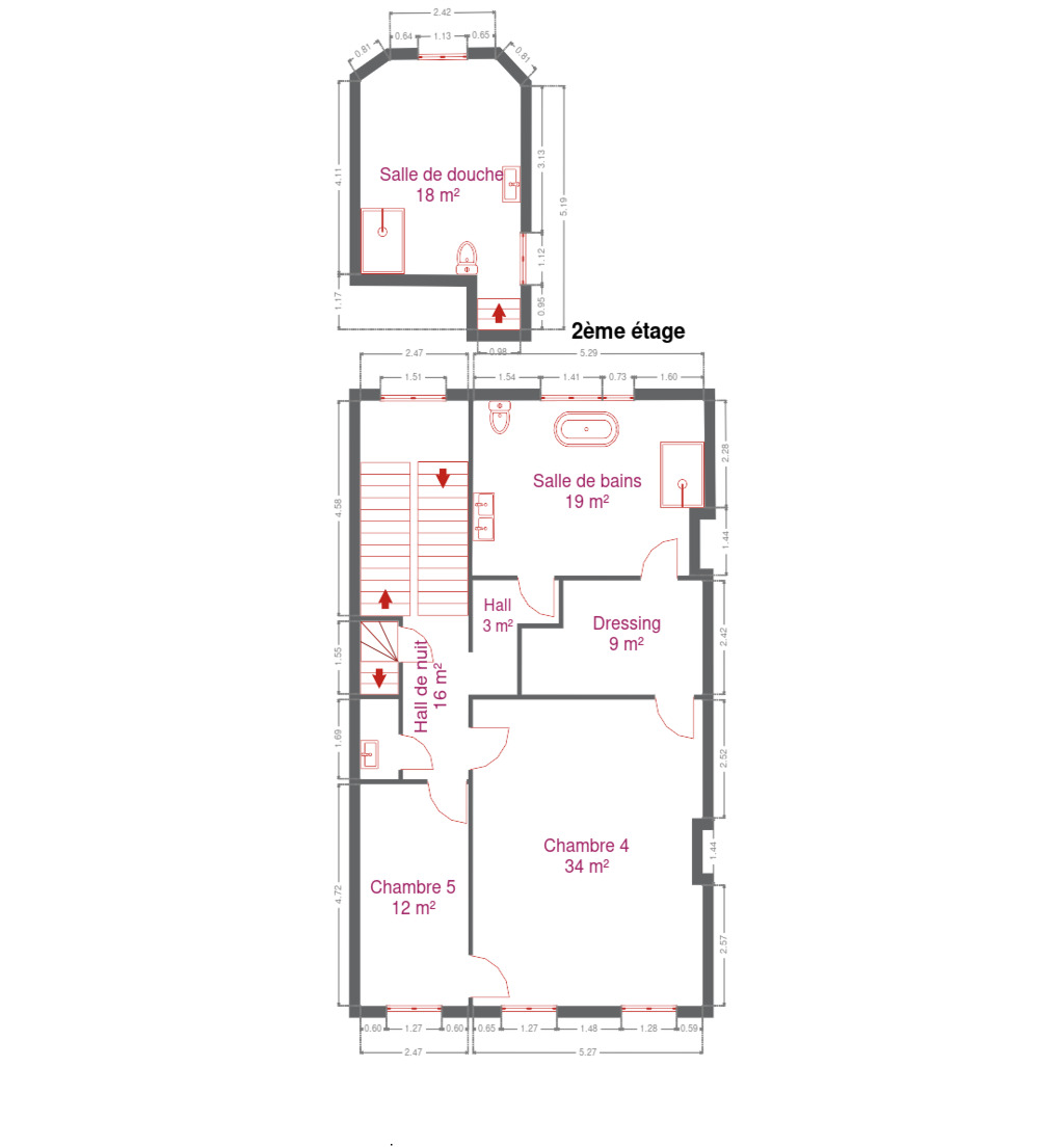
  • 2ème étage (+/- 98 m²) : palier, grande salle de bains, chambre ou bureau (+/- 11,66 m²), dressing (+/- 9 m²) et grande chambre (+/- 34 m²).
  • 3ème étage : 4 vastes greniers aménageables (+/- 120 m²).
  • Sous-sol (+/- 152 m²) : caves aménagées (chaufferie, buanderie, caves) accessibles par le sas d’entrée ou par la cour arrière.

Technique :
Chauffage central au gaz, installation électrique conforme, châssis DV en bois, alarme.

Général

  • Type De Revêtement De Sol Carrelages

Energie

  • Label PEB D
  • PEB E-SPEC (kwh/m²/an) 269
  • Emission CO2 50
  • E Total 114177

Sécurité

  • Alarme Oui

Bâtiment

  • Nombre De Garage 2
  • Parking Intérieur Oui
  • Parking Extérieur Non
  • Parking(s) Intérieur 2

Divers

  • Bureau Oui
  • Grenier Oui
  • Cave Oui

Spécificités terrain

  • Type D'environnement Zone D'habitation
  • Exposition De La Façade Avant Sud-ouest
  • Risque D'inondation Pas Situé En Zone Inondable

Raccordements

  • égouts Oui
  • électricité Oui
  • Télévision Par Cable Oui
  • Gaz Oui
  • Câbles Téléphoniques Oui
  • Eau Oui

À proximité

  • Transports En Commun 250
  • Magasins Oui
  • Ecoles Oui
  • Transports En Commun Oui
  • Autoroute Oui
  • Autoroute 3200

Charges & Rendement

  • Sous Régime TVA Non

Cadastre

  • Revenu Cadastral (€) 2677

Domaine juridique

  • Servitude Non
  • Jugement En Cours Non
  • Permis De Bâtir Oui
  • Permis De Lotir Non
  • Droit De Préemption Non
  • Affectation Urbanistique Zone D'habitat
  • Intimation En Justice Non
  • Type D'intimation Pas De Correction Juridique Ou Mesure Administrative Imposée

Certificats / Attestations

  • Attestation Du Sol Oui
  • Certificat D'électricité Oui, Conforme

Composition

  • Surface Bâtie 142
  • Nbre De Toilette(s) 4
  • Nombre De Sdd 1
  • Bureau 16.7

Equipement de base

  • Accès Handicapés Non
  • Cuisine Oui
  • Chauffage (ind/coll) Individuel
  • Ascenseur Non
  • Double Vitrage Oui
  • Chauffage Gaz (chau. Centr.)
  • Type De Cuisine Amer. Super-équipée

Équipements techniques

  • Centrale Tél. Oui
  • Châssis Bois

Bureaux vendu

Prix sur demande
Place Emile Dupont 5 - 4000 Liège
Découvrez ce bien en 360° !

Appelez
directement
Virginie

Appeler

Ou contactez Accord Immo via ce formulaire !

    En soumettant ce formulaire, vous acceptez notre déclaration de confidentialité
    6192070

    Vue de la carte