Maison vendu

175.000 €
Entre les maisons 48 - 4600 CHERATTE
Découvrez ce bien en 360° !

Informations principales

  • 3
  • 1
  • 126 m²
  • 400 m²

Description

Charmante maison 2 façades à Cheratte

Située entre les maisons au numéro 48 de la rue, cette maison fraîchement rénovée offre de nombreux avantages grâce à sa localisation. Vous profiterez d’un cadre paisible tout en étant à proximité des commodités locales et des axes principaux.

Caractéristiques :

  • Disponibilité immédiate
  • Superficie plancher chauffé : 126 m²

Agencement :

  • Rez-de-chaussée :

    • Séjour spacieux de +/- 19 m²
    • Cuisine équipée (tous les appareils sauf le lave-vaisselle) de +/- 14 m², avec accès direct à la cour et au jardin en palier.
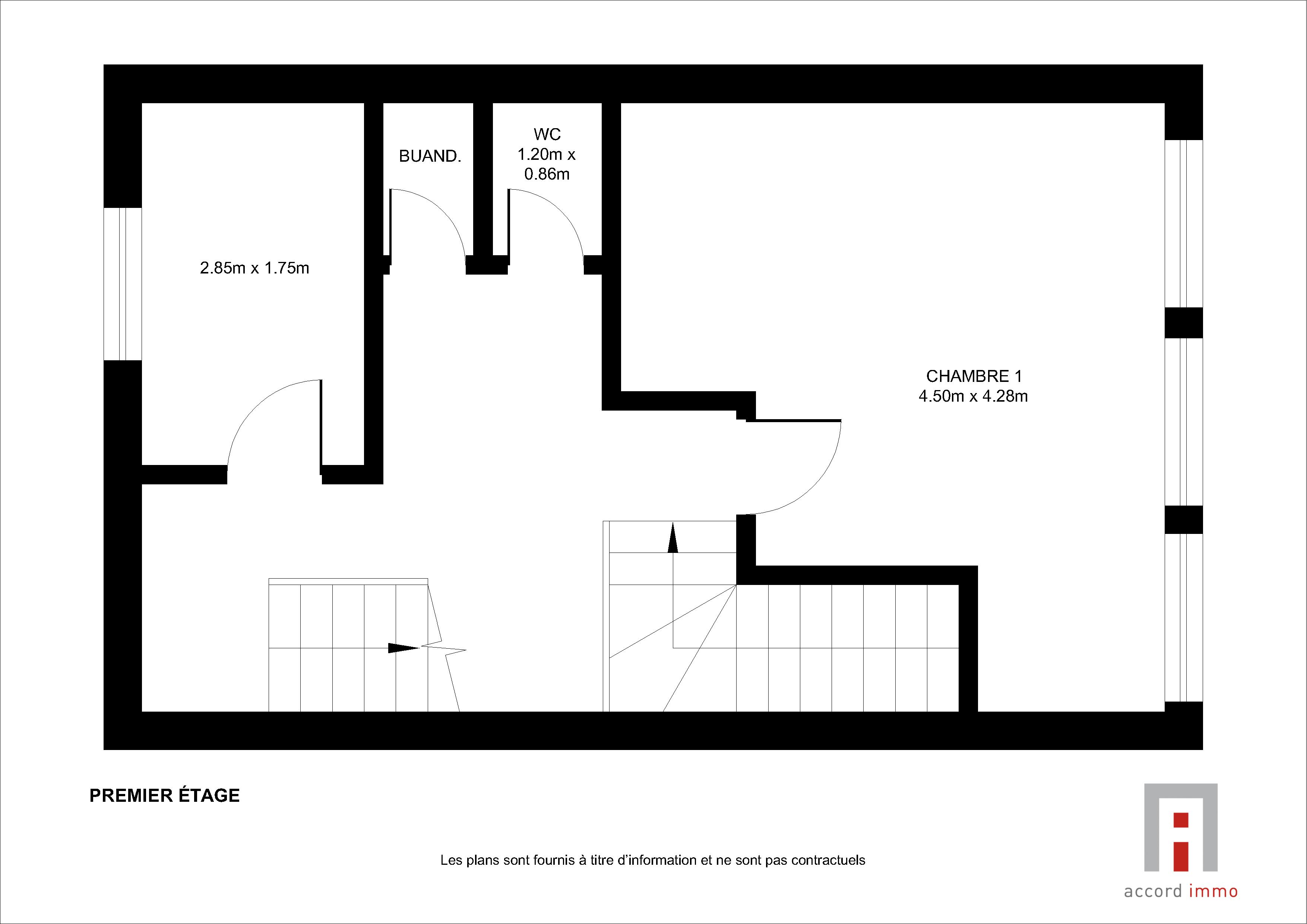
  • Premier étage :

    • Hall de nuit
    • Salle de bains avec baignoire (+/- 5 m²)
    • WC séparé
    • Buanderie
    • Grande chambre de +/- 17 m².
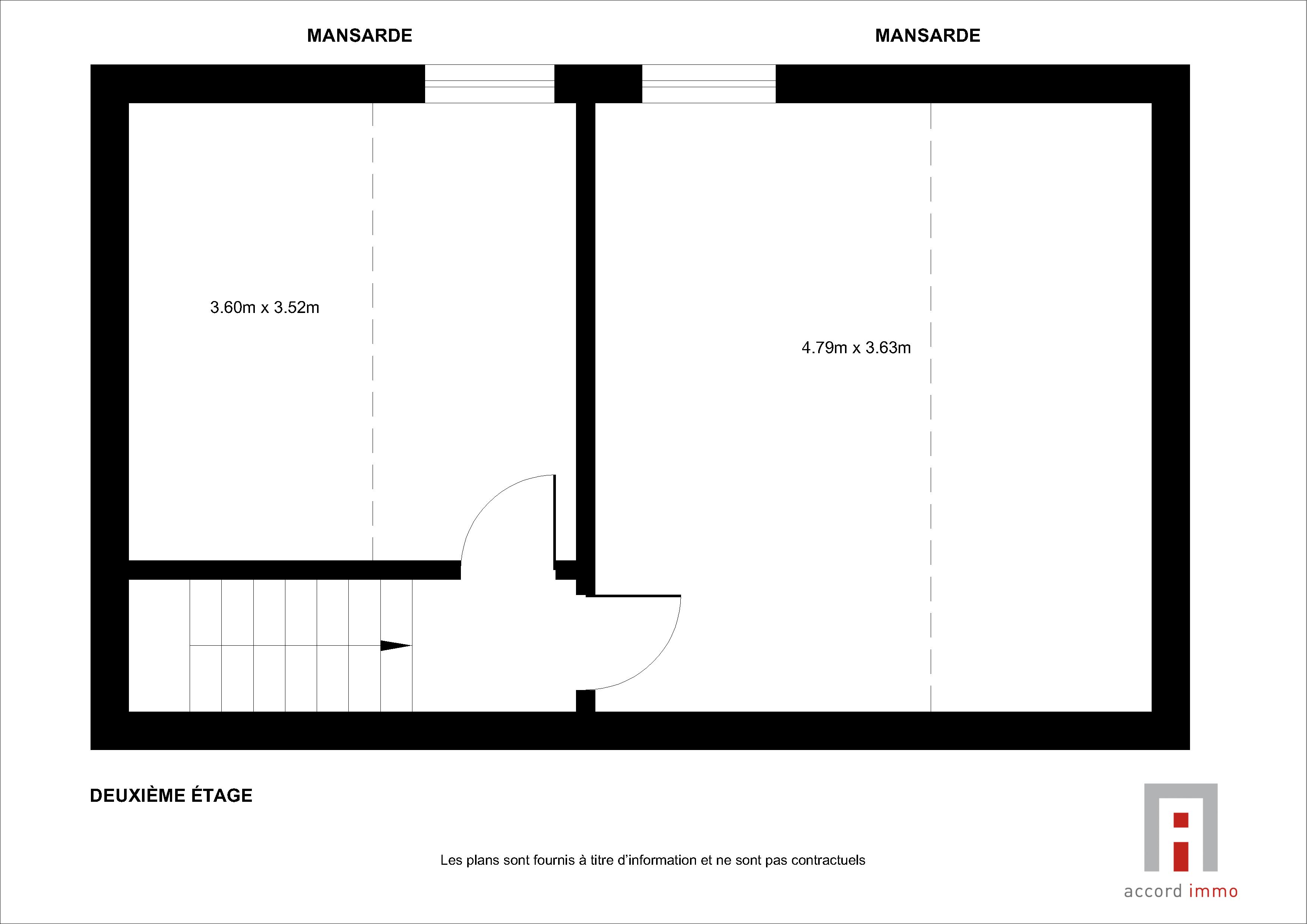
  • Deuxième étage :

    • Hall de nuit
    • Deux grandes chambres supplémentaires de +/- 17 m² et 12 m².
  • Sous-sol :

    • Cave pratique pour le stockage.

Atouts supplémentaires :

  • Conformité gaz
  • Conformité électrique
  • Chauffage central
  • Châssis PVC double vitrage
  • Compteurs d'eau, gaz et électricité séparés
  • Toiture récente

Informations financières :

  • Revenu cadastral : 270 euros

Pour explorer cette propriété, visionnez la visite virtuelle ici : Visite Virtuelle.

Energie

  • Label PEB D
  • PEB E-SPEC (kwh/m²/an) 264
  • Emission CO2 49
  • E Total 33213

Bâtiment

  • Parking Intérieur Non
  • Parking Extérieur Non

Divers

  • Cave Oui

Equipement extérieur

  • Piscine Non

Spécificités terrain

  • Type D'environnement Calme
  • Risque D'inondation Pas Situé En Zone Inondable

Raccordements

  • égouts Oui
  • électricité Oui
  • Télévision Par Cable Oui
  • Gaz Oui
  • Câbles Téléphoniques Oui
  • Eau Oui

À proximité

  • Ecoles Oui
  • Transports En Commun Oui
  • Autoroute Oui

Charges & Rendement

  • Sous Régime TVA Non

Certificats / Attestations

  • Certificat D'électricité Oui, Conforme

Composition

  • Nbre De Toilette(s) 1
  • Chambre 1 16.81999969482422
  • Chambre 2 11.859999656677246
  • Chambre 3 17.479999542236328
  • Nbre De Terrasse(s) 1
  • Salle De Séjour 19
  • Cuisine 14.279999732971191

Equipement de base

  • Accès Handicapés Non
  • Cuisine Oui
  • Chauffage (ind/coll) Individuel
  • Ascenseur Non
  • Double Vitrage Oui
  • Chauffage Gaz (chau. Centr.)
  • Type De Cuisine équipée
  • Sdb Douche Dans Le Bain

Équipements techniques

  • Châssis Pvc

Maison vendu

175.000 €
Entre les maisons 48 - 4600 CHERATTE
Découvrez ce bien en 360° !

Appelez
directement
Virginie

Appeler

Ou contactez Accord Immo via ce formulaire !

    En soumettant ce formulaire, vous acceptez notre déclaration de confidentialité
    5520375

    Vue de la carte